Bilocale in Via Antonio Tempesta a Roma

38 m2
2 vani
1 camera
1 bagno
ascensore
€ 190.000
Foto Foto
Foto Foto
Foto Foto
Foto Foto

Appartamento in Vendita di 38 mq a Roma

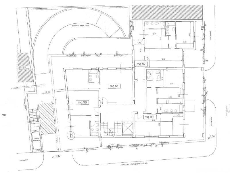
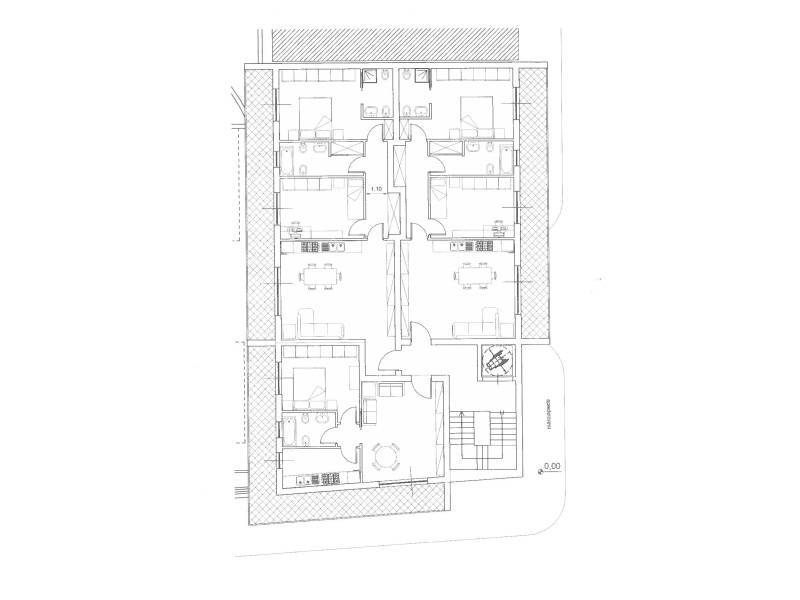
PIGNETO - VIA ANTONIO TEMPESTA - NUOVA COSTRUZIONE CONSEGNA 2025 Nelle immediate vicinanze della Metro Malatesta proponiamo appartamenti di nuova costruzione. Tante soluzioni abitative tra cui scegliere: mini appartamenti, bilocali, trilocali ecc. Edificati in Bioedilizia Green, la modalità per costruire un edificio nel modo più ecologico possibile, integrando e ottimizzando l'uso di materiali naturali con le tecniche costruttive adatte a ridurre l'impatto energetico, così da ottenere una casa a basso consumo e contemporaneamente salutare per chi la abita.Possibilità di acquisto Box con colonnine di ricarica auto elettriche o Posto auto scoperto.Appartamento proposto in vendita: 38 mq, posto al 5° piano, composto da: soggiorno angolo cottura, camera matrimoniale, bagno, terrazzo di 15 mq Costruzione in via Antonio Tempesta, angolo e seconda entrata in via Bartolomeo Perestrello. La costruzione ha già le fondamenta fatte ed anche i box , che sono circa 30; la costruzione sarà su sette piani con una metratura di abitativo di circa 300 mq a piano + le parti comuni. E' rappresentata una pianta tipo ma è possibile accorpare o richiedere delle metrature che saranno convalidate dalla proprietà.Consulenza mutuo in sede con i nostri Consulenti BancariFor English Call: 06 85 95 65 74

Dove si trova

41.8839212.54045

Informazioni generali

0623045
38 m2
2 locali
€ 190.000
Vendita
Appartamento
Roma
Via Antonio Tempesta
Libero
2024
28/07/2024

Accessori

1
1
Autonomo
Ristrutturato
Angolo cottura
si 
15 mq

Efficienza energetica

A
A
175 kwh/m2 anno

Richiesta informazioni all'agenzia

Progeacasa - Affiliato Frimm -

viale delle gardenie 4-6-8
Roma (RM)

Autorizzazione al trattamento dei dati personali (Mostra)
Dichiaro di aver letto l'informativa sul trattamento dei dati personali e autorizzo espressamente BasicSoft S.r.l. gestore di RisorseImmobiliari.it al trattamento dei dati da me forniti. Accetto inoltre che i dati sopra inseriti siano trasmessi alle agenzie immobiliari interessate per essere da loro ricontattato. BasicSoft S.r.l. declina ogni responsabilità riguardo al trattamento di tali dati da parte delle agenzie immobiliari.
*) Riempire tutti i campi contrassegnati. Almeno uno dei campi telefono e/o cellulare devono essere riempiti
Contatta
RisorseImmobiliari.it © Copyright 2026 - Tutti i diritti sono riservati BasicSoft S.r.l. | C.F./P.IVA: 05269090485 | Reg. Imprese di Firenze | Cap.Soc. Euro 10.330,00 I.V.