Negozio in Via Dell'Archetto, 21 a Roma
vendita Negozio Roma
CENTRO STORICO VIA DELL’ARCHETTO LOCALE COMMERCIALE
Centro Storico nelle immediate vicinanze di Palazzo Colonna, più precisamente in Via dell’Archetto, proponiamo la vendita di un locale commerciale di circa 92 mq, attualmente locato ad attività di ristorazione con regolare contratto di 6 anni, ma con possibilità di liberarlo.
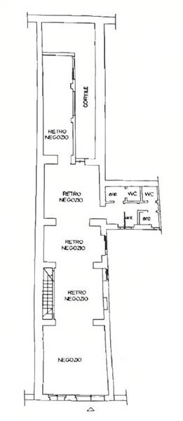
Ristrutturato, il locale offre ampi spazi interni, negozio e retronegozio doppi servizi con antibagno. Attraverso una scala si accede al magazzino che ricopre la superficie del locale sovrastante. In ottimo stato è dotato di pavimenti in ceramica, pareti in intonaco con arcate in pietra, aria condizionata.
La zona, ricca di fascino storico e architettonico, dista pochi minuti a piedi dal Pantheon, Piazza della Rotonda, e Via del Corso. Un contesto dinamico e altamente frequentato, ideale per chi desidera rilevare un’azienda food già avviata e pronta all’uso oppure per chi vuole avviare una nuova attività.
Prezzo di vendita € 540.000,00. Classe energetica di appartenenza: G.
Informazioni generali
Accessori
Richiesta informazioni all'agenzia
Richiedi informazioni all'agenzia
Cerca nel comune di Roma
Lista delle zone
- Infernetto/Malafede/Madonnetta a Roma
- Casilina/ Prenestina/ Centocelle/ Alessandrino
- Monte Sacro/ Talenti/ Vigne nuove
- Tuscolano/ Don Bosco/ Cinecittà
- Prati/ Delle Vittorie/ Borgo
- EUR (Europa)/ Laurentino/ Montagnola
- Centro Storico
- Nuovo Salario/ Prati Fiscali/ Colle Salario
- Boccea/ Torrevecchia/ Pineta Sacchetti
- S.Giovanni/ Esquilino/ San Lorenzo/
