Quadrilocale in Via Barisano da Trani a Roma
Appartamento in Vendita di 100 mq a Roma
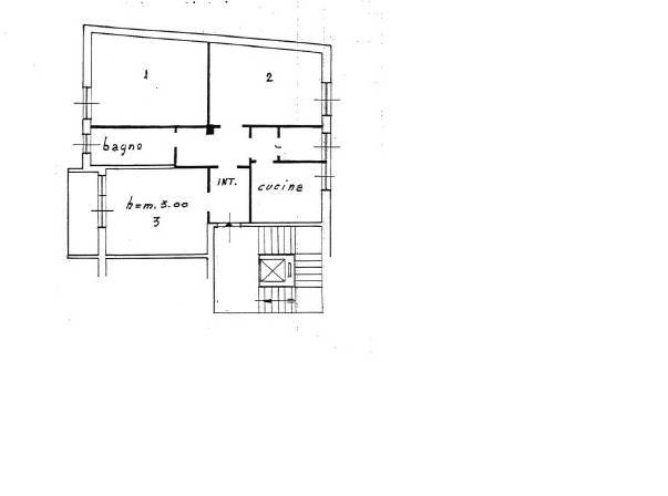
Roma TRASTEVERE - Via Barisano da Trani - In stabile signorile adiacente Ponte Testaccio proponiamo la vendita di un trilocale con studio posto al secondo piano. Accedendo alla casa l'ampio ingresso ci introduce nella zona giorno composta dalla cucina abitabile e dal salone servito dal balcone. La zona notte si compone di due ampie camere matrimoniali, uno studio in cui è possibile ripristinare il bagno che era presente precedentemente, e infine il bagno con vasca. L'impianto idraulico , la cucina e gli infissi sono stati rifatti mentre la pavimentazione è l'originale in graniglia per tutto quanto l'appartamento esclusa la cucina e il bagno. Il riscaldamento è centralizzato con contabilizzatori di calore e sono presenti 3 condizionatori caldo/freddo nel salone e nelle camere. La posizione è strategica essendo posizionata a pochi metri dalla Stazione Trastevere e a quelle di tram , inoltre anche a quella dell'autobus che permette un facile collegamento con il centro storico, la stazione Termini e l'aeroporto di Fiumicino. In mezzâora di cammino si raggiunge piazza Venezia o al Colosseo, attraversando il Circo Massimo, oppure il Ghetto Ebraico con una passeggiata piacevole e comoda, percorrendo il lungotevere mentre si ammira lâIsola Tiberina. Ideale per chi desidera un appartamento spazioso e confortevole in una delle zone più dinamiche della capitale.
Dove si trova
Informazioni generali
Accessori
Efficienza energetica
Planimetria
Richiesta informazioni all'agenzia
Richiedi informazioni all'agenzia
Cerca nel comune di Roma
Lista delle zone
- Infernetto/Malafede/Madonnetta a Roma
- Casilina/ Prenestina/ Centocelle/ Alessandrino
- Monte Sacro/ Talenti/ Vigne nuove
- Tuscolano/ Don Bosco/ Cinecittà
- Prati/ Delle Vittorie/ Borgo
- EUR (Europa)/ Laurentino/ Montagnola
- Centro Storico
- Nuovo Salario/ Prati Fiscali/ Colle Salario
- Boccea/ Torrevecchia/ Pineta Sacchetti
- S.Giovanni/ Esquilino/ San Lorenzo/
