Quadrilocale in Via Dei Ciancaleoni in zona Rione Xix Celio a Roma
Appartamento in Vendita di 104 mq a Roma
Rione Monti: Al secondo piano di un signorile palazzo, proponiamo un ampio appartamento con doppio ingresso, sia da Via dei Ciancaleoni che da Via Panisperna. L'immobile, da ristrutturare si compone di:IngressoDisimpegnoTre camere da lettoSoggiornoDue bagniIl doppio ingresso offre un'ulteriore flessibilità , permettendo di creare due accessi indipendenti.Questo appartamento è ideale per diverse esigenze:Famiglie che necessitano di abitare in centro città Investitori che desiderano frazionarlo in due unità immobiliari da mettere a redditoProfessionisti che necessitano di un'abitazione con annessa zona lavorativa.L'ubicazione strategica, nel cuore del centro storico di Roma, a pochi passi da Via Cavour e dalla Stazione Termini, rende l'immobile appetibile anche per chi desidera vivere in una zona ricca di servizi e di fascino.
Dove si trova
Informazioni generali
Accessori
Efficienza energetica
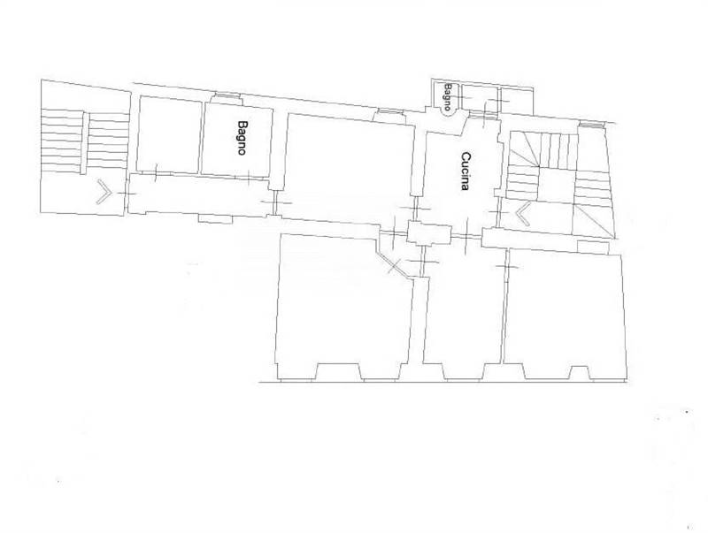
Planimetria
Richiesta informazioni all'agenzia
Richiedi informazioni all'agenzia
SANTO SORRENTINO SRL
Cerca nel comune di Roma
Lista delle zone
- Infernetto/Malafede/Madonnetta a Roma
- Casilina/ Prenestina/ Centocelle/ Alessandrino
- Monte Sacro/ Talenti/ Vigne nuove
- Tuscolano/ Don Bosco/ Cinecittà
- Prati/ Delle Vittorie/ Borgo
- EUR (Europa)/ Laurentino/ Montagnola
- Centro Storico
- Nuovo Salario/ Prati Fiscali/ Colle Salario
- Boccea/ Torrevecchia/ Pineta Sacchetti
- S.Giovanni/ Esquilino/ San Lorenzo/
