Quadrilocale in zona Tiburtino, Pietralata, Collatino a Roma
120 m2
4 vani
4 camere
2 bagni
box
€ 380.000
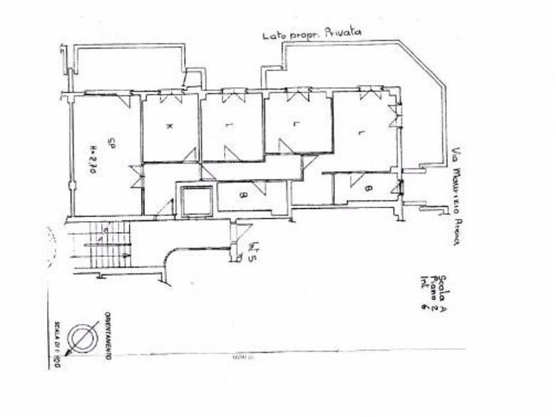
appartamento in vendita di 120 mq ca. luminoso esterno panoramico sito a roma, posto al 2° piano, composto da: salone singolo, cucina abitabile (tavola per 4 persone), 3 camere matrimoniali, 2 bagni, 2 terrazzi, discrete condizioni. ascensore, box possibilità.
Dove si trova
41.9416612.56933
Informazioni generali
1511402
120 m2
4 locali
€ 380.000
Vendita
Appartamento
Roma
Tiburtino/ Pietralata/ Collatino
1986
24/02/2016
Accessori
2
4
Efficienza energetica
G
G
175 kwh/m2 anno
Richiesta informazioni all'agenzia
Richiedi informazioni all'agenzia
Frimm centro servizi
via Delle Azzorre 392 Roma
Roma
(RM)
P.IVA: 08545221007
Cerca nel comune di Roma
Lista delle zone
- Infernetto/Malafede/Madonnetta a Roma
- Casilina/ Prenestina/ Centocelle/ Alessandrino
- Monte Sacro/ Talenti/ Vigne nuove
- Tuscolano/ Don Bosco/ Cinecittà
- Prati/ Delle Vittorie/ Borgo
- EUR (Europa)/ Laurentino/ Montagnola
- Centro Storico
- Nuovo Salario/ Prati Fiscali/ Colle Salario
- Boccea/ Torrevecchia/ Pineta Sacchetti
- S.Giovanni/ Esquilino/ San Lorenzo/
