Trilocale in Via Marino Ghetaldi a Roma
Appartamento in Vendita di 100 mq a Roma
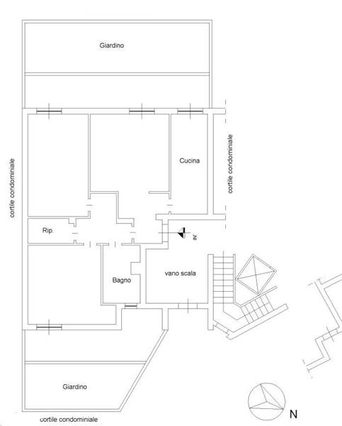
CECCHIGNOLA - VIA MARINO GHETALDI - Proponiamo in vendita un meraviglioso appartamento di mq 100, sito al piano terra di una palazzina in ottima condizione rifinita ad intonaco.Lâappartamento è composto da: salone, cucina abitabile, disimpegno, due camere da letto matrimoniali, un ripostiglio e un bagno.Lâappartamento offre anche comodi spazi esterni e più precisamente un ampio giardino fronte/retro di circa 120 mq, un patio ed una veranda, alla quale si accede sia dalla cucina sia dalle due camere da letto.Inoltre, è dotato di: porta blindata, grate di sicurezza e zanzariere.Compreso nel prezzo anche un box-auto di 15 mq.Lâimmobile è in buone condizioni e si trova nella parte centrale del quartiere di Roma Cecchignola, vicinissimo a tutti i servizi.La casa è unâottima soluzione anche e soprattutto per un investimento in quanto ad alto indice di redditività .Lâappartamento è allacciato a tutte le utenze dirette (acqua, luce e gas).Consulenza mutuo in sede con i nostri Consulenti BancariFor English Call: 06 85 95 65 74
Dove si trova
Informazioni generali
Accessori
Efficienza energetica
Planimetria
Richiesta informazioni all'agenzia
Richiedi informazioni all'agenzia
Progeacasa - Affiliato Frimm -
Cerca nel comune di Roma
Lista delle zone
- Infernetto/Malafede/Madonnetta a Roma
- Casilina/ Prenestina/ Centocelle/ Alessandrino
- Monte Sacro/ Talenti/ Vigne nuove
- Tuscolano/ Don Bosco/ Cinecittà
- Prati/ Delle Vittorie/ Borgo
- EUR (Europa)/ Laurentino/ Montagnola
- Centro Storico
- Nuovo Salario/ Prati Fiscali/ Colle Salario
- Boccea/ Torrevecchia/ Pineta Sacchetti
- S.Giovanni/ Esquilino/ San Lorenzo/
