Trilocale in Via Antonio Tempesta a Roma
Appartamento in Vendita di 100 mq a Roma
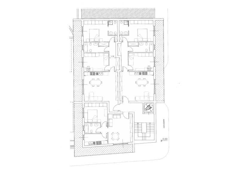
PIGNETO - Via Antonio Tempesta - NUOVA COSTRUZIONE CONSEGNA 2025 Nelle immediate vicinanze della Metro Malatesta proponiamo appartamenti di nuova costruzione. Tante soluzioni abitative tra cui scegliere: mini appartamenti, bilocali, trilocali ecc. Edificati in Bioedilizia Green, la modalità per costruire un edificio nel modo più ecologico possibile, integrando e ottimizzando l'uso di materiali naturali con le tecniche costruttive adatte a ridurre l'impatto energetico, così da ottenere una casa a basso consumo e contemporaneamente salutare per chi la abita. Possibilità di acquisto Box con colonnine di ricarica auto elettriche o Posto auto scoperto. Appartamento proposto in vendita: 100 mq, posto al 5° piano, composto da: salone angolo cottura, camera matrimoniale, cameretta, 2 bagni, terrazzo di 25 mq. Costruzione in via Antonio Tempesta, angolo e seconda entrata in via Bartolomeo Perestrello. La costruzione ha già le fondamenta fatte ed anche i box , che sono circa 30; la costruzione sarà su sette piani con una metratura di abitativo di circa 300 mq a piano + le parti comuni. E' rappresentata una pianta tipo ma è possibile accorpare o richiedere delle metrature che saranno convalidate dalla proprietà .
Dove si trova
Informazioni generali
Accessori
Efficienza energetica
Richiesta informazioni all'agenzia
Richiedi informazioni all'agenzia
Progeacasa - Affiliato Frimm -
Cerca nel comune di Roma
Lista delle zone
- Infernetto/Malafede/Madonnetta a Roma
- Casilina/ Prenestina/ Centocelle/ Alessandrino
- Monte Sacro/ Talenti/ Vigne nuove
- Tuscolano/ Don Bosco/ Cinecittà
- Prati/ Delle Vittorie/ Borgo
- EUR (Europa)/ Laurentino/ Montagnola
- Centro Storico
- Nuovo Salario/ Prati Fiscali/ Colle Salario
- Boccea/ Torrevecchia/ Pineta Sacchetti
- S.Giovanni/ Esquilino/ San Lorenzo/
