Trilocale in Via Ivrea in zona Appio Latino, Appia Nuova, Appio Pignatelli, Capan a Roma
80 m2
3 vani
2 camere
ascensore
€ 290.000
vendita Appartamento Roma
AREA RE
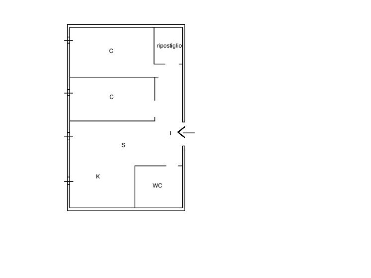
Nelle vicinanze di pontelungo, in zona servita dalla metro linea a e da tutte le attività commerciali. proponiamo, in palazzo in tinta, un silenzioso appartamento composto da: salone a vista, due camere, cucina, servizio, ripostiglio. Euro 290.000 cod. 1255 www.area-re.it
Informazioni generali
856733
80 m2
3 locali
€ 290.000
Vendita
Appartamento
Roma
Appio Latino/ Appia Nuova/ Appio Pignatelli/ Capan
Via Ivrea
2013
27/11/2013
Accessori
2
Terra, con ascensore
Centralizzato
Da ristrutturare
Abitabile
Efficienza energetica
G
G
277,1 kwh/m2 anno
Richiesta informazioni all'agenzia
Richiedi informazioni all'agenzia
AREA AGENZIE IMMOBILIARI SRL
via appia nuova 230
00183
Roma
(RM)
P.IVA: 09801068100
Cerca nel comune di Roma
Lista delle zone
- Infernetto/Malafede/Madonnetta a Roma
- Casilina/ Prenestina/ Centocelle/ Alessandrino
- Monte Sacro/ Talenti/ Vigne nuove
- Tuscolano/ Don Bosco/ Cinecittà
- Prati/ Delle Vittorie/ Borgo
- EUR (Europa)/ Laurentino/ Montagnola
- Centro Storico
- Nuovo Salario/ Prati Fiscali/ Colle Salario
- Boccea/ Torrevecchia/ Pineta Sacchetti
- S.Giovanni/ Esquilino/ San Lorenzo/
